ImageAccel
Cornerstone Video cards:
@80A5.ADF - High Resolution Display 
@80A5.ADF - DualPage Display (similar, rename to @80A5.ADF)
@80A6.ADF - ImageAccel Display 

ImageAccel 1 
     Win95 and Win3.1x
     Win NT 4.0 
     Win NT 3.51
     OS/2 Warp 3.0 and 2.1x 
CVC  (Whazzat?)
     MCA Windows 3.x  (Not available)
Ulrich Trunk's Unofficial Cornerstone ImageAccel site Expired!


MC164

Drivers (thanks, Brad!)
     Don't expect too much, the W95 drivers were just warmed over W3.XX and caused my model 95 to run in DOS mode. Maybe the NT drivers are better, I don't know as I have never tried them. The W95 drivers do support the 6091-19 as a menu option, which is kind of nice. 



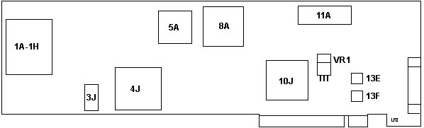
1A-1H NEC D42273V-10 
3J 131.00 MHz 
4J
5A L1A4678 
8A L1A4220
10J Altera EPB2001LC 
11A 438-04ME 
13E, 13F Motorola 10H116 
VR1 Motorola 7905.2CT
0

This card has 8 NEC D42273V-10 VRAM chips. 



MC1608C/11
JP1 monitor type selection
U50-53, U80-83 TC528257J-80 
U1 50 MHz TTL osc
U2 Cornerstone 1212288-200
TP1  MC1608C/11 12660-003 (BIOS)
U130 BT467KHF220 RAMDAC
U140 BT471KPJ80 RAMDAC BVE
U111 ICS1562AM PLL (pixel clock)
LED  green LED (what for?)
P90  15 pin VGA connector
JP12,30 solder pads for jumper
U151/2 and U155/6 socket artifacts

Helmut P. Einfalt had nothing better to do than bother me. So here it is...

   The MC1608C/11 is a 2 MB graphics card capable of driving fixed frequency monitors. It is no suprise that the Cornerstone monitors of the time (1993/4) are supported, but – pretty surprisingly – also the whole of the 6091 series by IBM.
   Selecting the monitor is done via a set of jumpers in the JP1 position of the card (top right corner). 

JP1 Settings
Display Type:
1
2
3
4
Autosync  on   on   on   on 
CS Color 19 (1)  off  on  off  on
IBM 6091-16 and -19i  on  on  off  on
IBM 6091-19  on  off  on  on
IBM 6091-23  on  off  off  on
CS Color 20/70 (2)  off  off  on  on
CS Color 21/76 (3)  off  on  on  on

(1) Not supported for ImageAccel 1280 controller
(2) ImageAccel 1600/70 and 1600/76 controllers only
(3) ImageAccel 1600/76 controller only
 

More info about setup under NT 4.0 at Ulrich Trunk's Unofficial ImageAccel site 


AdapterId 80A6 ImageAccel Display

Primary or Secondary Video Adapter
   Choose primary if ImageAccel is the primary display, otherwise choose secondary if VGA is the primary display. (NOTE: If you select the standard of <Primary> for the video adapter, you’ll see all DOS based messages on the monitor attached to the ImageAccel. <Secondary> means that you use the ImageAccel only for HiRes output (which would require another monitor attached permanently to the BVA).
    <"Primary">, Secondary

I/O base address
   Choose a 2 byte I/O block with no conflicts
    <"2000" (2000-2001)>, 2010 (2010-2011), 4000 (4000-4001), 4010 (4010-4011)

Memory base segment address
   Choose a 8K memory block with no conflicts.
    <"0DE000" (DE00-DFFF)>, 0DC000 (DC00-DDFF), 0DA000 (DA00-DBFF), 0D0000 (D000-D1FF), 0CE000 (CE00-CFFF), 0CC000 (CC00-CDFF), 0CA000 (CA00-CBFF), 0C0000 (C000-C1FF)

Interrupt Selection
   Choose an interrupt with no conflicts.
     <"IRQ 10">, 11, 5, 3

   The settings are not critical as long as they don’t conflict with other settings. 



CS Fixed Frequency Color Monitors with ImageAccel Video Controllers.
Monitor - Color 21/76, Color 20/70, Color 19 
 
  The Color 21/76, Color 20/70 and Color 19) are fixed frequency color monitors. These monitors are not compatible with standard VGA video controllers. Standard VGA video cards require a monitor that operates at 31.5KHz horizontal scan frequency with a 60Hz vertical refresh rate. These monitors have only been tested using the following ImageAccel video controllers. 
                               
Color 21/76  ImageAccel 1 - MC 1608C/11 
Color 20/70  ImageAccel 1 - MC 1608C/11, 1608C/12 
Color 19       ImageAccel 1 - MC 1608C/10, 1608C/11, 1608C/12 
 


9595 Main Page