7012 Planar

Original images from Rick Ekblaw 



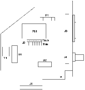
7012 Ethernet Riser  P/N 52G4737  FRU 43G0382

 
F1 1 A, 250V fuse
J1 card edge plugs into planar
J2 AUI / coax
J3 Ethernet AUI connector 
J4 Ethernet coax connector
PS1 Valor PM6030
U1 Intel D82C501AD
U2 DP8392CN-1
Y1 20.000 MHz xtal
1

PS1 Valor PM6030 12V to 9V power regulator

DP8392C.pdf   DP8392C/DP8392C-1 CTI Coaxial Transceiver Interface

  The RS/6000 adapter identifier on the backplate is 2-8.



7012-370 Memory Card  P/N 65G1800  FRU not indicated
J1-8 72-pin sockets, gold plated
U1,3 50G6861
U2  50G6858
1


7012 SCSI Bus Extension Card  P/N 51G9781   FRU 00G2721

Rick says:
   As you can see, there's not much to this "SCSI Bus Extension Card".  It has a 62 card edge connector (31 on each side) that plugs into the planar, and two standard SCSI narrow connectors (CN1, CN2) are available to attach 3.5-inch SCSI hard drives.

9595 Main Page