The Project Gutenberg EBook of Transactions of the American Society of
Civil Engineers, vol. LXVIII, Sept. 1910, by Charles M. Jacobs

This eBook is for the use of anyone anywhere at no cost and with
almost no restrictions whatsoever.  You may copy it, give it away or
re-use it under the terms of the Project Gutenberg License included
with this eBook or online at www.gutenberg.org


Title: Transactions of the American Society of Civil Engineers, vol. LXVIII, Sept. 1910
       The New York Tunnel Extension of the Pennsylvania Railroad,
              The North River Division. Paper No. 1151

Author: Charles M. Jacobs

Release Date: June 10, 2006 [EBook #18548]

Language: English

Character set encoding: ISO-8859-1

*** START OF THIS PROJECT GUTENBERG EBOOK SOCIETY OF CIVIL ENGINEERS ***




Produced by Juliet Sutherland, Sigal Alon and the Online
Distributed Proofreading Team at http://www.pgdp.net






[32]

AMERICAN SOCIETY OF CIVIL ENGINEERS

INSTITUTED 1852


TRANSACTIONS


Paper No. 1151

THE NEW YORK TUNNEL EXTENSION OF THE PENNSYLVANIA RAILROAD.

THE NORTH RIVER DIVISION.

By Charles M. Jacobs, M. Am. Soc. C. E.


These observations are written with the purpose of outlining briefly, as far as the writer was concerned, the evolution of the scheme of bringing the Pennsylvania Railroad and the Long Island Railroad into New York City, and also, as Chief Engineer of the North River Division of the New York Tunnel Extension of the Pennsylvania Railroad, to record in a general way some of the leading features of the work on this division, which is that portion of the work extending from the east line of Ninth Avenue, New York City, to the Hackensack Portal on the westerly side of the Palisades, as an introduction to the papers by the Chief Assistant Engineer and the Resident Engineers describing in detail the work as constructed.

It may be stated that, since shortly after the year 1871, when the Pennsylvania Railroad system was extended to New York Harbor through the lease of the New Jersey Lines, the officers of that company have been desirous of reaching New York City by direct rail connection.

The writer's first connection with the tunneling of the North River was early in 1890, when he was consulted by the late Austin Corbin, President of the Long Island Railroad Company and the Philadelphia [33] and Reading Railroad Company, as to the feasibility of connecting the Long Island Railroad with the Philadelphia and Reading Railroad (or with the Central Railroad of New Jersey, which was the New York connection of the Reading) by a tunnel from the foot of Atlantic Avenue, Brooklyn, under the Battery and New York City, and directly across the North River to the terminal of the Central Railroad of New Jersey. Surveys, borings, and thorough investigations were made, and the Metropolitan Underground Railroad Company was incorporated in the State of New York to construct this railroad. Mr. Corbin, however, was aware that, in the transportation problem he had in hand, the Central Railroad of New Jersey and the Philadelphia and Reading Railroad were not as important factors as the Pennsylvania Railroad, and, in consequence, he abandoned the scheme for a tunnel to the Central Railroad of New Jersey for a line direct to the Pennsylvania Railroad terminal in Jersey City.

Meantime, the Pennsylvania Railroad Company, as a result of its investigation of the matter, in June, 1891, thought that the most feasible project seemed to be to build tunnels for rapid transit passenger service from its Jersey City Station to the lower part of New York, connecting there with the rapid transit systems of that city, and also extending under New York on the line of Cortlandt Street, with stations and passenger lifts at the main streets and elevated railroads.

The late A. J. Cassatt, then a Director of the Pennsylvania Railroad Company, and previous thereto as General Manager and Vice-President (and later as President) of that company, was deeply interested in obtaining an entrance into New York City, but was not satisfied with the proposed rapid transit passenger tunnels which required the termination of the Pennsylvania Railroad trains at its Jersey City Station. Therefore, upon his request, in September of the same year, another study and report was made by Joseph T. Richards, M. Am. Soc. C. E., then Engineer of Maintenance of Way of the Pennsylvania Railroad, on a route beginning in New York City at 38th Street and Park Avenue on the high ground of Murray Hill, thence crossing the East River on a bridge, and passing around Brooklyn to Bay Ridge, thence under the Lower Bay or Narrows to Staten Island and across to the mainland, reaching the New York Division of the [34] Pennsylvania Railroad at some point between Rahway and Metuchen. Mr. Cassatt also had in mind at that time a connection with the New England Railroad, then independent, but now part of the New York, New Haven, and Hartford Railroad system, by means of the Long Island Railroad, and a tunnel under the East River, which in later years, as the result of further consideration of the situation, has been covered by the proposed New York Connecting Railroad with a bridge across the East River and over Ward's and Randall's Islands.

As a result of these investigations, the late George D. Roberts, who was then President of the Pennsylvania Railroad Company, authorized an expenditure of about $25,000 for soundings to determine the nature of the strata for tunneling under water. These soundings were carefully made by Mr. Richards with a diamond drill, bringing up the actual core of all rock found in crossing the waters of New York Bay from the west to the east side and extending from the Narrows to the Jersey City Station of the Pennsylvania Railroad.

After these investigations had been made, early in 1892, Mr. Roberts expressed himself as being favorable to the undertaking, with the definite limitation that the tunnels must be for small cars doing local suburban business, and for the transfer of Pennsylvania Railroad passengers to and from New York, Brooklyn, and Jersey City, and not in any way to be tunnels for standard steam equipment, the expense for terminals and the prohibited use of coal for fuel in such tunnels not warranting any broader consideration. Under such instructions, the interests of the Pennsylvania Railroad Company for effecting a physical entrance into New York City in that year were turned over to Samuel Rea, M. Am. Soc. C. E., then Assistant to the President of that Company, who has been identified with the investigations, and the progress and construction of this work since that time, Mr. Cassatt also working in conjunction with him on the plans then and since considered by the Pennsylvania Railroad Management.

On October 5th, 1892, Mr. Rea, under special direction of President Roberts, made an extended investigation of the various routes which had then been projected for extending the system into New York City by rail or transport, and reported to Mr. Roberts that, in his opinion, because of the limitation of the tunnel scheme to rapid transit trains and the consequent transfer of passengers and traffic carried in passenger trains, and because of the drawbacks caused by the use of steam [35] locomotives in full-sized tunnels, and the objection to cable traction or any system of transportation which had not then stood the test of years of practical service, the plan of the North River Bridge for reaching New York City and establishing a terminus therein was the best that had been evolved up to that time. The plan provided a direct rail entrance into New York City for all railroads reaching the west side of the Hudson River, and also for the New York Central and Hudson River Railroad, as well as adequate station facilities in that city. This bridge would have had one clear span of 3,100 ft. between pier heads, landing on the New York side at the foot of West 23d Street, and thence the line would have passed diagonally to the terminus at Sixth Avenue and 25th Street. The location of the terminus was subsequently changed to the vicinity of Seventh Avenue and 36th Street. The bridge was designed with three decks: The first or lower deck was to accommodate eight steam railroad tracks; the second was to have six tracks, four of which could be assigned for rapid transit trains operating with electric power, and the other two for steam railroad trains; the third deck, reached by elevators, was to be a promenade extending from anchorage to anchorage. A connection with the Eleventh Avenue tracks of the New York Central and Hudson River Railroad was to bring the trains of that road into the Union Station. The Bridge Company had a Federal charter—granted in 1888—with broad powers. Gustav Lindenthal, M. Am. Soc. C. E., was Chief Engineer, and he and Mr. Rea were corporators and among its early promoters. The Pennsylvania Railroad Management looked with favor on its construction at that time, as subaqueous tunnels, with standard railroad equipment with steam traction, were not regarded as a final or attractive solution of the problem, from the standpoint of the Management, and at a subsequent period the Pennsylvania Railroad Company agreed to use the North River Bridge provided the other roads reaching the west bank of the Hudson River would join. These roads, however, did not avail themselves of the opportunity which in its broadest scope was laid before them in 1900, after the Board of Directors of the Pennsylvania Railroad Company had approved the scheme at the instance of Mr. Cassatt.

The scheme of Mr. Corbin for a subway connection, between Flatbush Avenue and the Jersey City Station of the Pennsylvania Railroad, for local transit, took form in 1892, and, jointly with the [36] Pennsylvania interests, railroad companies were incorporated in the respective States to build a tunnel from under the Jersey City Station, under the Hudson River to Cortlandt Street, New York City, thence under Maiden Lane, the East River, and Pineapple and Fulton Streets, Brooklyn, to a location at or near Flatbush and Atlantic Avenues. On May 9th, 1893, these companies were merged into the Brooklyn, New York and Jersey City Terminal Railroad Company, and estimates and reports on the construction were made ready by the writer in association with Mr. Rea, pending application for the franchises. The panic of 1893, occurring about that time, checked further progress on this scheme, and, before it could be revived again, other important projects for reaching New York City were given consideration.

That part of Mr. Corbin's plan contemplating a subway under Atlantic Avenue in Brooklyn to the present Flatbush Avenue Terminal was not a new idea, as a tunnel had been built in 1845 and operated under a portion of Atlantic Avenue, but later it was filled up. Plate IV, reproduced from a crayon sketch which was the property of the late William H. Baldwin, Jr., is a view of this tunnel.

In conjunction with schemes for river tunnels, complete plans for rapid transit subways for New York City, very much on the line of the present rapid transit subways, were also prepared for Mr. Corbin by the writer. These plans provided a system of deep tunnels in rock, entirely below the plane of quicksand, and at the Battery the lines were to connect directly into the tunnels to Long Island and New Jersey, respectively, and the stations throughout, where the rock was at a deep level, were to be fitted with elevators, grouped as suggested in Plate V, using private property on each side of the street at station locations—one side for north-bound and the other side for south-bound traffic. These plans were submitted to the first Rapid Transit Commission, and, after long consideration, were rejected by that Commission because they provided for the construction of the tunnels by a private company, notwithstanding Mr. Corbin gave the Commission assurances of ample financial means to carry the work to completion.

During the years 1892-93 Mr. Corbin was convinced that it was necessary to get better facilities for handling the baggage and express matter of the Long Island Railroad and the Long Island Express Company across the East River between Long Island City and New York [37] City, and he instructed the writer to investigate and report on the feasibility of building a tunnel, along the lines of the East River Gas Tunnels, then nearly completed, between the foot of East 34th Street, New York City, and the Long Island City Station of the Long Island Railroad. In 1893 an investigation was made for such a tunnel, to be of similar size to the East River Gas Tunnel (8 by 10 ft.), solely for the purpose of handling baggage and express matter. Investigation was made and estimates prepared, but the cost was considered to be prohibitive in view of the possible earnings solely from the handling of baggage and express, and the matter was not considered further.

Plate IV.—Tunnel under Part of Atlantic Avenue, Brooklyn. (From a Crayon Sketch.) Plate IV.Tunnel under Part of Atlantic Avenue, Brooklyn.
(From a Crayon Sketch.)

While Mr. Corbin was deeply interested in the down-town river tunnels, the up-town situation was of great importance to the Long Island Railroad, and, having allied himself with Mr. Charles Pratt, they took up generally the franchise owned by Dr. Thomas Rainey for a bridge over Blackwell's Island. Mr. Corbin became interested with Dr. Rainey in 1894, and the actual construction proceeded on this bridge. The design provided for four railroad tracks, besides highways for tracks, pedestrians, etc., with a terminal station at Third Avenue and 64th Street, New York City, which, under the franchise, was the limit to which the railroad could proceed.

At this period there were two projects for bridging the Hudson or North River: the New York and New Jersey Bridge Company at about 59th Street, and the North River Bridge Company at 23d Street, as hereinbefore described. Several studies were made by the writer, with the idea of making a rail connection between the Long Island "Rainey" bridge and a bridge over the North River. An overhead structure connection was prohibitory, as no franchise could be obtained to cross Fifth Avenue with an overhead structure. Sketches were prepared for a subway construction to connect with the bridges, but a final plan was not worked out.

The failure to carry out the joint undertaking with the Pennsylvania Railroad Company in 1893 led Mr. Corbin to revive the scheme of extending the Long Island Railroad from Flatbush Avenue, Brooklyn, to New York City, therefore consideration was given to a relocation of the route for Mr. Corbin during the early months of 1896, the idea being that the entire up-town outlet for the Long Island Railroad would be by Blackwell's Island Bridge, and the tunnel project would give the down-town outlet.

[38] At this time a commission had been appointed by the Legislature to investigate the conditions on Atlantic Avenue, Brooklyn, and evolve some scheme for the elimination of grade crossings on that avenue. Early in 1896 plans were prepared and presented to this Commission; first, for a subway from Flatbush Avenue Terminal for the entire distance to the limits of the City of Brooklyn at Eldert's Lane; second, for a subway from the Flatbush Avenue Terminal to East New York, Manhattan Crossing, the railroad to remain as it previously existed at grade through the 26th Ward of Brooklyn. Each of these schemes contemplated an extension through Brooklyn to New York City at Cortlandt Street and Broadway, and surveys and borings for this work were made across the East River. In the summer of 1896, on the decease of Mr. Corbin, all projects and work were immediately stopped; but, after some months, Mr. W. H. Baldwin, Jr., when elected President of the Long Island Railroad Company, took up actively the reconsideration of the means whereby the Long Island Railroad could reach New York City. After the fullest consideration, he decided that the Blackwell's Island Bridge was by no means a suitable, adequate, or convenient entry for the Long Island Railroad into New York City, as it involved too great a cost and altogether too rigid a connection; it was also a very inconvenient location, inasmuch as it was cut off from convenient access to the west side of New York City by Central Park.

For the down-town connection, Mr. Baldwin became enthusiastic, but he had in mind, throughout, the all-important necessity for the Long Island Railroad to reach the Pennsylvania Railroad across the North River. At the same time Mr. Baldwin took up energetically the Atlantic Avenue Improvement with the Atlantic Avenue Commission, and, on consideration, decided it was essential that it should extend through the 26th Ward above or below grade. The better plan, of course, was obviously to make it a subway throughout, but, further, the residents of this ward objected to the subway through that section, and that construction would have made any change of the Manhattan Beach Division at Manhattan Crossing very difficult for the future; besides this, the controlling factor was the absolute limitation by the City of Brooklyn of the amount of expenditure therefor in which they would participate, therefore a composite scheme, which is the plan as carried out, was agreed upon, being in part subway and part elevated. This scheme reached a focus [39] early in 1897, and the law constituting the Board for the Atlantic Avenue Improvement was passed, with a provision in the last paragraph of the Act, for the construction of a tunnel from Flatbush Avenue Terminal under Flatbush Avenue and Fulton Street to Pineapple Street, crossing the river to Broadway and Maiden Lane (Cortlandt Street), New York City, and with the understanding that it would be extended beyond the New York State Line to the Pennsylvania Railroad Station in New Jersey. This gave the legal right for the construction of this tunnel, and, on June 20th, 1899, the New York and Long Island Terminal Railroad Company was incorporated for the purpose, Mr. Baldwin being President and J. V. Davies, M. Am. Soc. C. E., Chief Engineer. Application was immediately made to the Boards of Aldermen of Brooklyn and of New York City. The latter acted favorably on the application, but the Board of Aldermen of Brooklyn held the matter up, while the Rapid Transit Commission laid out and promulgated the plan for Contract No. 2 of the Rapid Transit Subway. With the understanding that the Rapid Transit Brooklyn extension would be constructed to the Flatbush Avenue Terminal, Mr. Baldwin withdrew the application for the independent franchise, and agreed to proceed with the Atlantic Avenue Improvement, on the basis of the City proceeding with the Brooklyn extension of the Rapid Transit Subway. This provided for the Long Island Railroad entry down town.

Plate V.—New York Underground Railway Company Section Through Surface and Underground Stations Plate V.New York Underground Railway Company
Section Through Surface and Underground Stations

Subsequently, however, it was proved that Mr. Baldwin had not been fully satisfied that this was the proper solution of the matter, for on April 12th, 1901, and upon his recommendation, the Board of Directors of the Long Island Railroad Company took over from the Pennsylvania Railroad Company its entire interests in the old Brooklyn, New York, and Jersey City Terminal Railway Company, thus giving him control of the route from Flatbush Avenue via Maiden Lane and Cortlandt Street to underneath the Jersey City station.

In the early part of 1900 active consideration was being given by the Pennsylvania Railroad and other railroads terminating in New Jersey to the proposed North River Bridge, as hereinbefore stated, and, for the Long Island Railroad, Mr. Baldwin organized a new company to construct a tunnel from the Long Island Railroad at Sunnyside Yard, diving under the streets of Long Island City by two tracks under the East River to the foot of 33d Street and [40] then proceeding under 33d Street as far as Seventh Avenue. A station was to be located at Fourth Avenue below the Rapid Transit Subway Station and also a large Terminal Station at Broadway. For this purpose an option was obtained on the property of the Newbold Lawrence Estate, at Broadway, Sixth Avenue, 33d and 34th Streets, now occupied by Saks' Store. Mr. Baldwin, however, considered that the amount of the investment ($1,600,000) for that property was too great for this purpose, and allowed the option to expire. The property was sold within a week thereafter to the Morganthau Syndicate for $2,000,000. At this time (May, 1900), the Pennsylvania Railroad obtained a controlling interest in the Long Island Railroad, and thereafter the two schemes became one. Mr. Baldwin and Mr. Rea purchased two 25-ft. lots on 33d Street just east of Broadway for an entrance to the underground station. Plans were also prepared for extending this line from Seventh Avenue northward under Seventh Avenue to 45th Street. The investigation and preliminary work in connection with this project were carried out in the early part of 1900.

Reconsideration was given by Mr. Baldwin to the proposed location of the up-town tunnels, with the idea of connecting the New York Central and Hudson River Railroad by a tunnel between Long Island City (Long Island Railroad Station) and the foot of 42d Street and extending to the Grand Central Station, but nothing further than investigation and the preparation of estimates was done on this.

In the summer of 1901 Mr. Cassatt was in Paris and was advised by Mr. Rea of the opening of the extension of the Orleans Railway to the Quai d'Orsay Station and its successful operation by electric power, also of the possibility of the Pennsylvania Railroad reaching New York City in a similar way (the other trunk lines not having joined in the promotion of the North River Bridge project). He at once examined the new line, and then consulted the writer in London in relation to the possibility of building tunnels under the North River. The writer returned to New York with Mr. Cassatt, and soon thereafter a conference of Mr. Cassatt, Mr. Rea, and Mr. Baldwin with the writer and Mr. Davies was held in the Pennsylvania Railroad Company Office in New York, when Mr. Cassatt outlined the scheme practically as it is now carried out, the only difference being that he also proposed a station on property of the New York and Harlem Railroad Company at 33d Street, which was soon abandoned on account of the grade from [41] the East River, and particularly because of the superior location of the adopted site at Seventh Avenue and 33d Street, this being central between the down-town commercial and financial district and Central Park, which divides New York City. On Mr. Cassatt's instructions, surveys and investigations were begun in November, 1901, and estimates, drawings, etc., were made. Preliminary estimates were presented to him on November 8th, 1901. Following this, borings were continued, and a plan was presented to Mr. Cassatt for assisting the support of the North River tunnels on piles, if necessary. At the time of the appointment of the Board of Engineers and the general organization of the work, the preliminary investigations and work had been carried to an advanced state.

One result of the determination of the Pennsylvania Railroad Company to extend its lines into New York City and thus move its principal station from Jersey City, was that the down-town local and suburban as well as through business was not provided for properly. Mr. William G. McAdoo, appreciating this opportunity, revived the scheme of an electric subway from Jersey City to New York, originally promoted by Mr. Corbin and associates, but not including the extension via Maiden Lane to Brooklyn, and entered into negotiations with the Pennsylvania Railroad Company to provide for this down-town business by extensions of the tunnel lines of the New York and New Jersey Railroads to Exchange Place, Jersey City, under the Pennsylvania Railroad Station, and thence across the Hudson River to Cortlandt and Church Streets. As a result, the Hudson and Manhattan Railroad Company was organized in 1902, and contracts were made with the Pennsylvania Railroad Company for the sub-surface use of its station in Jersey City, and for the interchange of passenger business at that point between the trains of the Pennsylvania Railroad Company and the tunnel of the Hudson and Manhattan Railroad Company. Later, a further contract was made with the Pennsylvania Railroad Company providing for the construction of the tunnel of the Hudson and Manhattan Railroad Company westward under the tracks of the Pennsylvania Railroad in Jersey City to a junction with the latter at Summit Avenue, at which point can be installed a joint station, and the operation effected of a joint electric train service between Church Street, New York City, and Newark, N. J., the Pennsylvania Railroad tracks between Summit Avenue and Newark to be electrified [42] for that purpose, with a transfer station established east of Newark, at Harrison, at which point the steam and electric locomotives will exchange. By means of this, all down-town passengers will transfer to the electric service at Harrison Station, and thus the Pennsylvania Railroad Company is expected to be relieved of maintaining a separate steam service for passenger traffic to Jersey City and a large down-town station with extensive contingent facilities at that point.

From the foregoing it will be seen that the final decision to extend the Pennsylvania Railroad into and through New York City by a system of tunnels, and erect a large station in that city on a most eligible site, was not reached in a hurried or off-hand manner, but after years of painstaking study and a full and extended investigation of all routes, projects, and schemes, whether originating with the company or suggested by others.

Plate VI.—Pennsylvania Railroad Extension: Map Showing Proposed Lines Leading to Those Finally Adopted Plate VI.Pennsylvania Railroad Extension: Map Showing Proposed Lines Leading to Those Finally Adopted

Plate VI is a map of New York City and vicinity on which are shown the various lines contemplated in the evolution of the New York Tunnel Extension of the Pennsylvania Railroad hereinbefore outlined.

The question of tunnels under the North River was an uncertain factor in the larger Pennsylvania Railroad scheme, owing to the nature of the ground composing the river bed in which the tunnels would be constructed.

It is well known that about 35 years ago an attempt was made to construct a tunnel under the North River by using a "Pilot" system under compressed air and forming the tunnels in brick masonry. Owing to the very soft nature of the materials through which it passed, several serious accidents occurred, and the work was abandoned after about 2,000 ft. of tunnel had been constructed. Later, this work was taken up again, when a shield was installed and an additional 1,800 ft. was built with cast-iron segmental lining, but the work was again abandoned, owing principally to financial difficulties while coincidentally before entering a rock reef which presented another serious difficulty in construction. The experience then in the construction of this tunnel led capitalists and engineers to believe that, owing to the very soft nature of the ground, a tunnel could not be built that would be sufficiently stable to withstand the vibration due to heavy traffic, and for this reason tunnels under the North River were not looked upon as practicable. The writer devised a scheme to carry within the tunnel the rolling loads on bridging supported on piers or piles extending [44] from the tunnel invert down to hard material. These would be attached to the tunnel itself or would pass into it independently through sliding joints in the tunnel shell. This scheme gained the confidence of the management, as it was believed that, by adopting such a plan, tunnels could be built in the soft material underlying the Hudson River and remain stable under all conditions of traffic. After thus feeling assured that by this method the tunnels could be made safe beyond question, orders were given to proceed with the great work of the extension into New York of the Pennsylvania and Long Island Railroad systems.

Fig. 1.—(Full page image) ENGINEERING STAFF ORGANIZATION Fig. 1.—(Full page image)
ENGINEERING STAFF ORGANIZATION

The organization of the engineering staff is shown on the diagram, Fig. 1. In the beginning of 1902 and during the period of making studies, additional borings, and preliminary triangulations, and prior to making the contract plans and specifications, James Forgie, M. Am. Soc. C. E., was appointed Chief Assistant Engineer by the writer. To him all the Resident Engineers and other heads of the Engineering Departments reported.

The work was divided into three Residencies:

1.—The Terminal Station-West, under the charge of B. F. Cresson, Jr., M. Am. Soc. C. E., Resident Engineer, comprising the work from the east side of Ninth Avenue to the east side of Tenth Avenue, including excavation, retaining and face walls, and the extensive work of underpinning Ninth Avenue with its surface and elevated railroads and other structures.

2.—The River Tunnels, under the charge of B. H. M. Hewett, M. Am. Soc. C. E., General Resident Engineer, and Mr. H. F. D. Burke and William Lowe Brown, M. Am. Soc. C. E., Resident Engineers, including the land tunnels from the east side of Tenth Avenue, New York City, to the commencement of the iron-lined tunnels, and extending westward from there to the Weehawken Shaft, New Jersey.

3.—The Bergen Hill Tunnels, under the charge of F. Lavis, M. Am. Soc. C. E., Resident Engineer, including the rock tunnels from the Weehawken Shaft to the Hackensack Portal on the west side of the Palisades, all in New Jersey.

Paul A. Seurot, M. Am. Soc. C. E., acted as Office Engineer in charge of the drawing office, and Mr. J. Soderberg as Mechanical Engineer in charge of the mechanical drafting. Prior to the construction of the above works Mr. C. J. Crowley acted as Resident Engineer on [45] the construction of the Weehawken Shaft, and J. F. Rodenbough, Assoc. M. Am. Soc. C. E., on that of the Manhattan Shaft.

Table 1 shows the quantities of certain materials and other statistics regarding this Division.

TABLE 1.

  Bergen Hill. River Tunnels. Term. Sta.-W.
Excavation disposed of (or displaced), in cubic yards 263,000 238,995 517,000
Cast metal used in tunnel, including cast iron and cast steel, in tons   64,265  
Steel bolts used, in tons   2,606  
Cement used (concrete and grout), in barrels 95,000 145,500 33,000
Concrete, in cubic yards 95,000 75,400 18,500
Dynamite for blasting, in pounds 600,000 100,400 206,000
Brickwork, in cubic yards   4,980  
Structural steel (including Pier 72), in pounds 50,000 3,141,000 1,475,000

The number of passengers carried on the Elevated Railroad and surface lines of Ninth Avenue during the underpinning of these structures was about 125,000,000.

The Board of Engineers, organized by the Pennsylvania Railroad Company in January, 1902, immediately took up the matter of route and grade. The center line, which had been assumed as the center line of 32d Street extended westward, was slightly changed.

The grade adopted was approximately 2% descending westward from Ninth Avenue, which would place the tunnel well below the Government dredging plane of 40 ft. below mean low water at the pier head line; thence westward on a lighter grade still descending until the deepest portion of the river was reached where the top of the rail would be about 90 ft. below mean high water, this location giving sufficient cover over the tunnels to insure stability and guard against the possibility of shipwrecks settling on the tunnels. From this point to the portal an ascending grade of 1.30% was adopted, which gave the lines sufficient elevation to cross over the tracks of the New York, Susquehanna and Western and the Erie Railroads, which run along the westerly base of the Palisades. Owing to the exigencies of construction, these grades in the river were very slightly modified. Plate VII is a plan and profile of the tunnels as constructed.

Plate VII.—Plan, Profile, and Triangulation, North River Tunnels Plate VII.Plan, Profile, and Triangulation, North River Tunnels

The Board of Engineers early in 1902 took up the question of supports for the tunnels under the North River, and various plans and [46] schemes were considered. It was finally decided to support the tracks on screw-piles carried through the lining of the tunnels, as originally proposed by the writer.

In order to know something of the capacity of screw-piles in the actual material to be passed through, it was resolved to test them. A caisson was sunk at the end of one of the Erie Railroad piers on the New Jersey side near the line of the tunnels, and, to obtain parallel conditions as much as possible, the excavation was carried down to the proposed grade of the tunnel. Various types of screw-piles were sunk therein and tests were made, not only of the dead load carrying capacity, but also with the addition of impact, when it was found that screw-piles could be sunk to hard ground and carry the required load. The final part of the test was the loading. The screw-pile, having a shaft 30 in. in diameter and a blade 5 ft. in diameter, was loaded with 600,000 lb., with the result that, for a month—the duration of this loaded test—there was no subsidence.

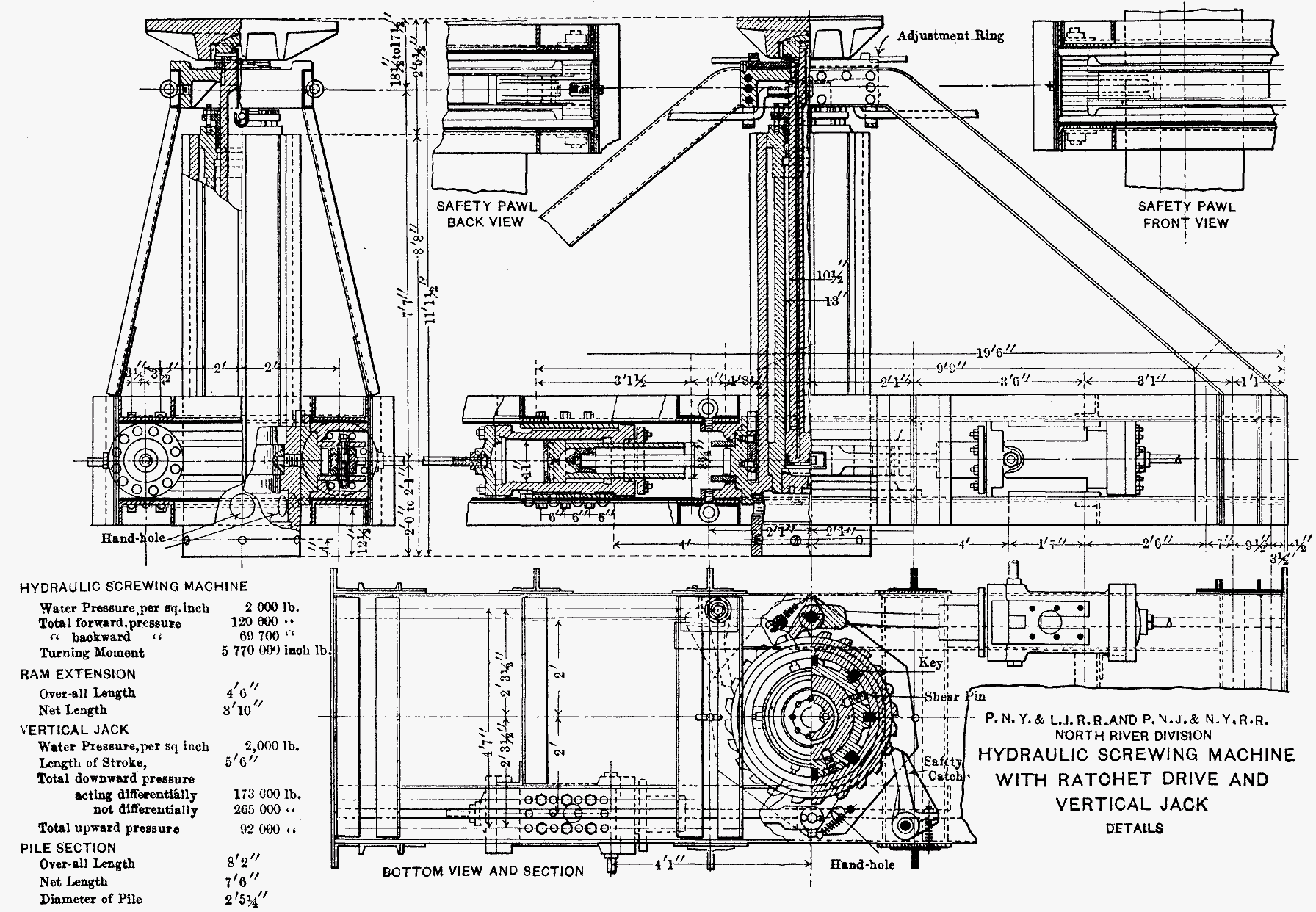
Again, and after the iron tunnel lining had been constructed across the river, tests were made of two types of supports: One a screw-pile 29-1/2 in. in diameter with a blade 4 ft. 8 in. in diameter and the other a wrought-iron pipe 16 in. in external diameter. Tests were made, not only for their carrying capacity, but also for their value as anchorages, and it was found that the screw-pile was more satisfactory in every way; it could be put down much more rapidly, it was more easily maintained in a vertical position, and it could carry satisfactorily any load which could be placed on it as a support for the track. The 16-in. pipe did not prove efficient either as a carrier or as an anchorage. These tests will be mentioned in the detailed description of the work to follow. Figs. 2 and 3 illustrate the general arrangement and details of the machine designed by the writer and used for sinking the test piles in the tunnels. This machine had been used originally on the New Jersey side on the test pile at Pier C, and the adaption was not exactly as shown on these drawings, but if the screw-piles had been placed in the tunnels, the arrangement shown would have been used.

Surveys, soundings, and borings were commenced in the latter part of 1901 on an assumed center line of tunnels which was the center line of 32d Street extended westward.

The soundings were made from a float stage fastened to a tugboat, the location being determined by transits on shore and the elevation [47] by measuring from the surface of the water, a tide gauge being continually observed and the time of soundings and gauge readings kept.

In the river wash-borings were made from a floating pile-driver on which was installed a diamond-drill outfit of rods, pump, etc. Fourteen borings were completed in the river. Considerable difficulty was found in holding the pile-driver against the current, the material in the bottom being very soft, and several borings were lost owing to the drifting of the pile-driver. Each boring was continued, and the depth of several was more than 250 ft. below the surface of the water. The borings on land were mostly core borings, and were generally made with the chilled shot boring machine.

Base lines, about 2,250 ft. in length, were measured on each side of the river, and observation points established. It was necessary to build a triangulation tower 60 ft. high on the New Jersey side as an observation point. The base lines were measured with 100-ft. steel tapes which were tested repeatedly, and the work was done at night in order to obtain the benefit of uniform temperature and freedom from traffic interruptions. From the base line on the New Jersey side, which passed over the Weehawken Shaft, an elevated point on the assumed center line on the side of Bergen Hill was triangulated to, and from this point westward a closed polygon was measured along the streets to the top of the hill on the west side and thence along the assumed center line to the portal. The level transfer across the river was made by sighting across in opposite directions simultaneously, and also by tide gauges. The outline of the final triangulation system is shown on Plate VII.

Fig. 2.—(Full page image) HYDRAULIC SCREWING MACHINE WITH RATCHET DRIVE AND VERTICAL JACK GENERAL ARRANGEMENT Fig. 2.—(Full page image)
HYDRAULIC SCREWING MACHINE
WITH RATCHET DRIVE AND VERTICAL JACK
GENERAL ARRANGEMENT
Fig. 3.—(Full page image) HYDRAULIC SCREWING MACHINE
WITH RATCHET DRIVE AND VERTICAL JACK DETAILS Fig. 3.—(Full page image)
HYDRAULIC SCREWING MACHINE
WITH RATCHET DRIVE AND VERTICAL JACK
DETAILS

The decision as to the locations of the shafts on both sides of the river, for construction purposes and finally for permanent use, was a comparatively simple matter, and, all circumstances considered, they are unquestionably in the most suitable places. On the New York side the shaft was as near as practicable to the line dividing the subaqueous iron-lined tunnels from the land tunnels, and on the New Jersey side the shaft was placed centrally on the line of the tunnels and on the nearest available ground to the river, while at the same time beyond the other end of the river tunnels, thus necessitating driving the subaqueous tunnels only from east and west to meet under the river. A caisson shaft on the New York side, on the line of the tunnels near the river bulkhead, was at one time considered, but was not [50] adopted as it entailed the driving of two shields both east and west, in addition to the two from New Jersey, adding to the plant outlay while not affording any material saving in the time of construction.

It was thought desirable to construct the shafts on the two sides of the river in advance of letting the main contracts for the tunnels. The Manhattan Shaft is north of the line of the tunnels, on the north side of 32d Street, east of Eleventh Avenue. The Weehawken Shaft is on the line of the tunnels in the yards of the Erie Railroad on the New Jersey side, and the distance between the shafts is about 6,575 ft. The contracts for these shafts were let in June, 1903, to the United Engineering and Contracting Company, and they were completed and ready for use at the time of letting the main contract for the tunnels, thus saving considerable time.

The Terminal Station-West.—Between Ninth and Tenth Avenues.—In the original design it was contemplated to have a four-track tunnel under 32d Street from Ninth to Eleventh Avenues, but owing to the necessity for having additional yard facilities, property was bought for about 100 ft. north and 100 ft. south of 32d Street, between Ninth and Tenth Avenues, and an open excavation, lined with concrete retaining walls and face walls, was made. Between Ninth and Tenth Avenues, 32d Street was closed, and the property formerly the street was bought by the Tunnel Company from the City of New York for a consideration by deed dated April 18th, 1906. The Church, Rectory, and School of St. Michael's, which was located on the west side of Ninth Avenue between 31st and 32d Streets, was acquired by the Tunnel Company after it had acquired property for and had built a similar institution on the south side of 34th Street west of Ninth Avenue.

Probably the most interesting feature of this contract was the support and maintenance of Ninth Avenue, which has a three-track elevated railway structure and a two-track surface railway structure, on which it was necessary to maintain traffic while excavation was made to a depth of about 60 ft., and a viaduct was erected to carry Ninth Avenue. The length of this viaduct is about 375 ft., and the steelwork and its erection was done apart from the North River Division work, but all excavation and underpinning was included in this division. The contract for this work on the Terminal Station-West was let to the New York Contracting Company-Pennsylvania [51] Terminal, on April 28th, 1906, and included about 517,000 cu. yd. of excavation, about 87% being rock, the construction of about 2,000 lin. ft. of retaining and face walls containing about 18,500 cu. yd. of concrete, and a large quantity of structural steel (1,475,000 lb.) for temporary use in underpinning Ninth Avenue.

Fig. 4 shows cross-sections of the Terminal Station-West yard, and Fig. 5 shows the general method of underpinning the Ninth Avenue structures.

Fig. 4.—TERMINAL STATION WEST TYPICAL SECTIONS Fig. 4.—TERMINAL STATION WEST TYPICAL SECTIONS

River Tunnels.—In the original plan a four-track tunnel was contemplated from the east side of Tenth Avenue to the east side of Eleventh Avenue, but, owing to the extension of the Terminal Yard, previously noted, this plan was changed, and a two-track structure was built having a central wall between the tracks. This was constructed in tunnel, with the exception of 172 ft. about midway between Tenth and Eleventh Avenues, where the rock dipped below the roof of the tunnel, and there the construction was made in open cut. These tunnels were lined with concrete with brick arches, Figs. 6, 7, and 8 being typical cross-sections. This work was executed by the O'Rourke Engineering Construction Company, under a contract dated November 1st, 1904.

[52] It was possible to excavate in full rock cover about 250 ft. of the tunnels eastward from the Weehawken Shaft and 225 ft. westward from the Manhattan Shaft. At these points the rock cover was very thin, and there shield chambers were made for the erection of two sets of shields, about 6,100 ft. apart. A typical cross-section of the Weehawken Land Tunnel is shown on Plate VIII.

Plate VIII.—Typical Sections Between Manholes, Bergen Hill Tunnels Plate VIII.Typical Sections Between Manholes, Bergen Hill Tunnels

The Board of Engineers decided, and it was so stated in the contract and specifications, that the river tunnels should be constructed by means of hydraulic shields, but bidders were permitted to present to the Board any scheme on which they might desire to bid, but, of course, the decision as to the practicability of such plans rested with the Board.

Inasmuch as the shield method of construction was required, the writer designed a shield for use in the North River Tunnels. The shield was about 18 ft. long, over all, and was provided with a rigid but removable hood extending beyond the normal line of the cutting edge, for use in sand, gravel, and ballast, to be removed when the shield reached the silt. The shields were thrust forward by twenty-four rams capable of exerting a pressure of 3,400 tons at a hydraulic pressure of 5,000 lb. per sq. in. Taking into account 30 lb. air pressure, this pressure was increased to 4,400 tons. The shield was fitted with a single hydraulic erector and hydraulic sliding platforms, and when complete weighed 194 tons. Fig. 9 is a back elevation and section of the shield.

The contract for the river tunnels was let to the O'Rourke Engineering Construction Company on May 2d, 1904.

The shields were built in accordance with the design previously referred to, and proved entirely satisfactory. Generally, the materials passed through were as follows: Starting out in full face rock, from it into a mixed face of rock and sand, thence into sand and gravel, full face of sand, piles, rip-rap, and the Hudson silt; and all were fully charged with water.

Compressed air, at an average gauge pressure of about 25 lb. and a maximum of 40 lb. per sq. in., was used in the tunnels from the time the shields emerged from full rock face until the tunnel lining had been joined up and all caulking and grummeting had been done.

Fig. 5.—(Full page image) ARRANGEMENT OF STRUCTURES SUPPORTING NINTH AVE. DURING PROGRESS OF EXCAVATION Fig. 5.—(Full page image)
ARRANGEMENT OF STRUCTURES SUPPORTING NINTH AVE. DURING PROGRESS OF EXCAVATION

Contractor's plants were established at the Weehawken Shaft and at the Manhattan Shaft, including at each, low-pressure air compressors [54] of a capacity of 13,000 cu. ft. of free air per minute and also high-pressure air compressors for drills, hydraulic pumps, electric generators, etc.

The river tunnels passed under Pier 72, North River (old No. 62), which was occupied by the New York Central and Hudson River Railroad Company. The Tunnel Company leased this pier and withdrew all the piles on the lines of the tunnels prior to the commencement of construction, and on the remaining piles constructed a trestle for the disposal of the excavation from the tunnels and the terminal. At the completion of the work this pier had to be restored, and Fig. 10 shows the general arrangements of the location of the piles and the pier structure with reference to the tunnels.

In the tunnels which were constructed in silt farther down the river, by the writer as Chief Engineer for the Hudson Companies, it had been possible to shove the shield through the silt with all the doors closed, displacing the ground and making great speed in construction owing to the absence of all mucking. It was thought that this procedure might be pursued in the larger tunnels of the Pennsylvania Railroad, and it was tried, but it was almost immediately found to be impossible to maintain the required grade without taking a certain quantity of muck into the tunnels through the lower doors, the tendency of the shield being to rise. By taking in about 33% of the excavation displaced by the tunnel, the grade could be maintained. It was considered desirable, owing to this rising of the shields, to increase the weight of the cast-iron lining, and this was done, making the weight of the completed tunnel more nearly equal to the weight of the displaced material. The weight of the cast-iron lining (with bolts) was increased from 9,609 to 12,127 lb. per lin. ft. of tunnel. The weight of the finished tunnel with this heavier iron is 31,469 lb. per lin. ft. The weight of the silt displaced per linear foot of tunnel, at 100 lb. per cu. ft., is 41,548 lb. The weight of the completed tunnel with the maximum train load is 42,869 lb. per lin. ft.

The maximum progress at one face in any one month was 545 ft., working three 8-hour shifts, and the average progress in each heading while working three shifts was 18 ft. per 24 hours; while working one shift with the heavier lining referred to above, the delivery of which was slow, the average progress was 11 ft. per 24 hours.

[55]

Fig. 6.—15' 4" Span Twin Tunnels. Rock Roof. Fig. 6.—15' 4" Span Twin Tunnels. Rock Roof.
Fig. 7.—19' 6" Span Twin Tunnels. Fig. 7.—19' 6" Span Twin Tunnels.
Fig. 8.—21' 6" Span Twin Tunnels Fig. 8.—21' 6" Span Twin Tunnels

[56]

Fig. 9.—PROPOSED SHIELD FOR SUBAQUEOUS TUNNELING GENERAL ELEVATION Fig. 9.—PROPOSED SHIELD FOR SUBAQUEOUS TUNNELING GENERAL ELEVATION

[57]

Fig. 10.—RESTORATION OF PIER 72 (OLD 62) NORTH RIVER TRANSVERSE SECTION AT CENTER OF PIER Fig. 10.—RESTORATION OF PIER 72 (OLD 62) NORTH RIVER TRANSVERSE SECTION AT CENTER OF PIER

In order to permit the screw-piles to be put in place through the [58] lining, cast-steel bore segments were designed, and placed in the invert at 15-ft. centers; these are of such a design as to permit the blade and shaft of the screw-pile to be inserted without removing any portion of the lining. Fig. 11 is a typical cross-section of the river tunnel, as originally planned, with these pile supports.

After the shields had met and the iron lining was joined up, various experiments and tests were made in the tunnel; screw-piles, and 16-in. pipes, previously referred to, were inserted through the bore segments in the bottom of the tunnel, thorough tests with these were made, levels were observed in the tunnels during the construction and placing of the concrete lining, an examination was conducted of the tunnels of the Hudson and Manhattan Railroad Company under traffic, and the result of these examinations was the decision not to install the screw-piles. The tunnels, however, were reinforced longitudinally by twisted steel rods in the invert and roof, and by transverse rods where there was a superincumbent load on the tunnels; it might also be noted that on the New York side, where the tunnels emerge from the rock and pass into the soft material, the metal shell is of cast steel instead of cast iron. Fig. 12 is a typical cross-section of the river tunnels as actually constructed.

Fig. 11.—(Full page image) CROSS-SECTION OF TUNNEL SHOWING TRACK SYSTEM AND SCREW-PILE. Fig. 11.—(Full page image)
CROSS-SECTION OF TUNNEL SHOWING TRACK SYSTEM AND SCREW-PILE.
Fig. 12.—SUBAQUEOUS TUNNELS CROSS-SECTIONS Fig. 12.—SUBAQUEOUS TUNNELS CROSS-SECTIONS

During the investigations in the tunnels, borings were made to determine exactly the character of the underlying material, and it was then found that the hard material noted in the preliminary wash-borings was a layer of gravel and boulders overlying the rock. When the borings in the tunnels reached this material it was found to be water-bearing and the head was about equivalent to that of the river. Rock cores were taken from these borings, and the deepest rock was found at about the center of the river at an elevation of 302.6 ft. below mean high water. Rods were then inserted in each bore hole and thereby attached to the rock and used as bench-marks in the tunnels. From these bench-marks, using specially designed instruments, very accurate observations of the behavior of the tunnels could be made, and from these the very interesting phenomenon of the rise and fall of the tunnels with the tide was verified, the tunnels being low at high tide and the average variations being about 0.008 ft. in the average tide of about 4.38 ft.: the tidal oscillations are entirely independent of the weight of the tunnels, since observations show them to have been the same both before and after the concrete lining was in position. There was [60] considerable subsidence in the tunnels during construction and lining, amounting to an average of 0.34 ft. between the bulkhead lines. This settlement has been constantly decreasing since construction, and appears to have been due almost entirely to the disturbances of the surrounding materials during construction. The silt weighs about 100 lb. per cu. ft. (this is the average of a number of samples taken through the shield door, and varied from 93 to 109 lb. per cu. ft.), and contains about 38% of water. It was found that whenever this material was disturbed outside the tunnels a displacement of the tunnels followed. The tunnels as above noted have been lined with concrete [61] reinforced with steel rods, and prior to the placing of the concrete the joints were caulked, the bolts grummeted, and the tunnels rendered practically water-tight; the present quantity of water to be disposed of does not exceed 300 gal. per 24 hours in each tunnel 6,100 ft. long.

Bergen Hill Tunnels.—These are two single-track tunnels, 37 ft. from center to center, and extend for a distance of 5,940 ft. from the Weehawken Shaft to the Hackensack Portal. They were built almost entirely through trap rock. The contract was let on March 6th, 1905, to the John Shields Construction Company, but was re-let on January 1st, 1906, to William Bradley, the Shields Company having gone into the hands of a receiver. About 1,369 ft. of the tunnel excavation was done by the Shields Company, but no concrete lining. The maximum monthly progress for all headings was 622 ft., and the average progress was 338 ft. A working shaft 216 ft. deep was sunk from the top of the hill, to facilitate construction. The tunnels are lined with concrete throughout. Typical cross-sections of these tunnels are shown on Plate VIII.

In conclusion it may be admissible for the writer after having, in conjunction with Mr. Samuel Rea, experienced the evolution and materialization of this Pennsylvania Railroad scheme, to express his great sorrow for the untimely death of the father of the entire scheme, the late President Cassatt.






End of the Project Gutenberg EBook of Transactions of the American Society
of Civil Engineers, vol. LXVIII, Sept. 1910, by Charles M. Jacobs

*** END OF THIS PROJECT GUTENBERG EBOOK SOCIETY OF CIVIL ENGINEERS ***

***** This file should be named 18548-h.htm or 18548-h.zip *****
This and all associated files of various formats will be found in:
        http://www.gutenberg.org/1/8/5/4/18548/

Produced by Juliet Sutherland, Sigal Alon and the Online
Distributed Proofreading Team at http://www.pgdp.net


Updated editions will replace the previous one--the old editions
will be renamed.

Creating the works from public domain print editions means that no
one owns a United States copyright in these works, so the Foundation
(and you!) can copy and distribute it in the United States without
permission and without paying copyright royalties.  Special rules,
set forth in the General Terms of Use part of this license, apply to
copying and distributing Project Gutenberg-tm electronic works to
protect the PROJECT GUTENBERG-tm concept and trademark.  Project
Gutenberg is a registered trademark, and may not be used if you
charge for the eBooks, unless you receive specific permission.  If you
do not charge anything for copies of this eBook, complying with the
rules is very easy.  You may use this eBook for nearly any purpose
such as creation of derivative works, reports, performances and
research.  They may be modified and printed and given away--you may do
practically ANYTHING with public domain eBooks.  Redistribution is
subject to the trademark license, especially commercial
redistribution.



*** START: FULL LICENSE ***

THE FULL PROJECT GUTENBERG LICENSE
PLEASE READ THIS BEFORE YOU DISTRIBUTE OR USE THIS WORK

To protect the Project Gutenberg-tm mission of promoting the free
distribution of electronic works, by using or distributing this work
(or any other work associated in any way with the phrase "Project
Gutenberg"), you agree to comply with all the terms of the Full Project
Gutenberg-tm License (available with this file or online at
http://gutenberg.org/license).


Section 1.  General Terms of Use and Redistributing Project Gutenberg-tm
electronic works

1.A.  By reading or using any part of this Project Gutenberg-tm
electronic work, you indicate that you have read, understand, agree to
and accept all the terms of this license and intellectual property
(trademark/copyright) agreement.  If you do not agree to abide by all
the terms of this agreement, you must cease using and return or destroy
all copies of Project Gutenberg-tm electronic works in your possession.
If you paid a fee for obtaining a copy of or access to a Project
Gutenberg-tm electronic work and you do not agree to be bound by the
terms of this agreement, you may obtain a refund from the person or
entity to whom you paid the fee as set forth in paragraph 1.E.8.

1.B.  "Project Gutenberg" is a registered trademark.  It may only be
used on or associated in any way with an electronic work by people who
agree to be bound by the terms of this agreement.  There are a few
things that you can do with most Project Gutenberg-tm electronic works
even without complying with the full terms of this agreement.  See
paragraph 1.C below.  There are a lot of things you can do with Project
Gutenberg-tm electronic works if you follow the terms of this agreement
and help preserve free future access to Project Gutenberg-tm electronic
works.  See paragraph 1.E below.

1.C.  The Project Gutenberg Literary Archive Foundation ("the Foundation"
or PGLAF), owns a compilation copyright in the collection of Project
Gutenberg-tm electronic works.  Nearly all the individual works in the
collection are in the public domain in the United States.  If an
individual work is in the public domain in the United States and you are
located in the United States, we do not claim a right to prevent you from
copying, distributing, performing, displaying or creating derivative
works based on the work as long as all references to Project Gutenberg
are removed.  Of course, we hope that you will support the Project
Gutenberg-tm mission of promoting free access to electronic works by
freely sharing Project Gutenberg-tm works in compliance with the terms of
this agreement for keeping the Project Gutenberg-tm name associated with
the work.  You can easily comply with the terms of this agreement by
keeping this work in the same format with its attached full Project
Gutenberg-tm License when you share it without charge with others.

1.D.  The copyright laws of the place where you are located also govern
what you can do with this work.  Copyright laws in most countries are in
a constant state of change.  If you are outside the United States, check
the laws of your country in addition to the terms of this agreement
before downloading, copying, displaying, performing, distributing or
creating derivative works based on this work or any other Project
Gutenberg-tm work.  The Foundation makes no representations concerning
the copyright status of any work in any country outside the United
States.

1.E.  Unless you have removed all references to Project Gutenberg:

1.E.1.  The following sentence, with active links to, or other immediate
access to, the full Project Gutenberg-tm License must appear prominently
whenever any copy of a Project Gutenberg-tm work (any work on which the
phrase "Project Gutenberg" appears, or with which the phrase "Project
Gutenberg" is associated) is accessed, displayed, performed, viewed,
copied or distributed:

This eBook is for the use of anyone anywhere at no cost and with
almost no restrictions whatsoever.  You may copy it, give it away or
re-use it under the terms of the Project Gutenberg License included
with this eBook or online at www.gutenberg.org

1.E.2.  If an individual Project Gutenberg-tm electronic work is derived
from the public domain (does not contain a notice indicating that it is
posted with permission of the copyright holder), the work can be copied
and distributed to anyone in the United States without paying any fees
or charges.  If you are redistributing or providing access to a work
with the phrase "Project Gutenberg" associated with or appearing on the
work, you must comply either with the requirements of paragraphs 1.E.1
through 1.E.7 or obtain permission for the use of the work and the
Project Gutenberg-tm trademark as set forth in paragraphs 1.E.8 or
1.E.9.

1.E.3.  If an individual Project Gutenberg-tm electronic work is posted
with the permission of the copyright holder, your use and distribution
must comply with both paragraphs 1.E.1 through 1.E.7 and any additional
terms imposed by the copyright holder.  Additional terms will be linked
to the Project Gutenberg-tm License for all works posted with the
permission of the copyright holder found at the beginning of this work.

1.E.4.  Do not unlink or detach or remove the full Project Gutenberg-tm
License terms from this work, or any files containing a part of this
work or any other work associated with Project Gutenberg-tm.

1.E.5.  Do not copy, display, perform, distribute or redistribute this
electronic work, or any part of this electronic work, without
prominently displaying the sentence set forth in paragraph 1.E.1 with
active links or immediate access to the full terms of the Project
Gutenberg-tm License.

1.E.6.  You may convert to and distribute this work in any binary,
compressed, marked up, nonproprietary or proprietary form, including any
word processing or hypertext form.  However, if you provide access to or
distribute copies of a Project Gutenberg-tm work in a format other than
"Plain Vanilla ASCII" or other format used in the official version
posted on the official Project Gutenberg-tm web site (www.gutenberg.org),
you must, at no additional cost, fee or expense to the user, provide a
copy, a means of exporting a copy, or a means of obtaining a copy upon
request, of the work in its original "Plain Vanilla ASCII" or other
form.  Any alternate format must include the full Project Gutenberg-tm
License as specified in paragraph 1.E.1.

1.E.7.  Do not charge a fee for access to, viewing, displaying,
performing, copying or distributing any Project Gutenberg-tm works
unless you comply with paragraph 1.E.8 or 1.E.9.

1.E.8.  You may charge a reasonable fee for copies of or providing
access to or distributing Project Gutenberg-tm electronic works provided
that

- You pay a royalty fee of 20% of the gross profits you derive from
     the use of Project Gutenberg-tm works calculated using the method
     you already use to calculate your applicable taxes.  The fee is
     owed to the owner of the Project Gutenberg-tm trademark, but he
     has agreed to donate royalties under this paragraph to the
     Project Gutenberg Literary Archive Foundation.  Royalty payments
     must be paid within 60 days following each date on which you
     prepare (or are legally required to prepare) your periodic tax
     returns.  Royalty payments should be clearly marked as such and
     sent to the Project Gutenberg Literary Archive Foundation at the
     address specified in Section 4, "Information about donations to
     the Project Gutenberg Literary Archive Foundation."

- You provide a full refund of any money paid by a user who notifies
     you in writing (or by e-mail) within 30 days of receipt that s/he
     does not agree to the terms of the full Project Gutenberg-tm
     License.  You must require such a user to return or
     destroy all copies of the works possessed in a physical medium
     and discontinue all use of and all access to other copies of
     Project Gutenberg-tm works.

- You provide, in accordance with paragraph 1.F.3, a full refund of any
     money paid for a work or a replacement copy, if a defect in the
     electronic work is discovered and reported to you within 90 days
     of receipt of the work.

- You comply with all other terms of this agreement for free
     distribution of Project Gutenberg-tm works.

1.E.9.  If you wish to charge a fee or distribute a Project Gutenberg-tm
electronic work or group of works on different terms than are set
forth in this agreement, you must obtain permission in writing from
both the Project Gutenberg Literary Archive Foundation and Michael
Hart, the owner of the Project Gutenberg-tm trademark.  Contact the
Foundation as set forth in Section 3 below.

1.F.

1.F.1.  Project Gutenberg volunteers and employees expend considerable
effort to identify, do copyright research on, transcribe and proofread
public domain works in creating the Project Gutenberg-tm
collection.  Despite these efforts, Project Gutenberg-tm electronic
works, and the medium on which they may be stored, may contain
"Defects," such as, but not limited to, incomplete, inaccurate or
corrupt data, transcription errors, a copyright or other intellectual
property infringement, a defective or damaged disk or other medium, a
computer virus, or computer codes that damage or cannot be read by
your equipment.

1.F.2.  LIMITED WARRANTY, DISCLAIMER OF DAMAGES - Except for the "Right
of Replacement or Refund" described in paragraph 1.F.3, the Project
Gutenberg Literary Archive Foundation, the owner of the Project
Gutenberg-tm trademark, and any other party distributing a Project
Gutenberg-tm electronic work under this agreement, disclaim all
liability to you for damages, costs and expenses, including legal
fees.  YOU AGREE THAT YOU HAVE NO REMEDIES FOR NEGLIGENCE, STRICT
LIABILITY, BREACH OF WARRANTY OR BREACH OF CONTRACT EXCEPT THOSE
PROVIDED IN PARAGRAPH F3.  YOU AGREE THAT THE FOUNDATION, THE
TRADEMARK OWNER, AND ANY DISTRIBUTOR UNDER THIS AGREEMENT WILL NOT BE
LIABLE TO YOU FOR ACTUAL, DIRECT, INDIRECT, CONSEQUENTIAL, PUNITIVE OR
INCIDENTAL DAMAGES EVEN IF YOU GIVE NOTICE OF THE POSSIBILITY OF SUCH
DAMAGE.

1.F.3.  LIMITED RIGHT OF REPLACEMENT OR REFUND - If you discover a
defect in this electronic work within 90 days of receiving it, you can
receive a refund of the money (if any) you paid for it by sending a
written explanation to the person you received the work from.  If you
received the work on a physical medium, you must return the medium with
your written explanation.  The person or entity that provided you with
the defective work may elect to provide a replacement copy in lieu of a
refund.  If you received the work electronically, the person or entity
providing it to you may choose to give you a second opportunity to
receive the work electronically in lieu of a refund.  If the second copy
is also defective, you may demand a refund in writing without further
opportunities to fix the problem.

1.F.4.  Except for the limited right of replacement or refund set forth
in paragraph 1.F.3, this work is provided to you 'AS-IS' WITH NO OTHER
WARRANTIES OF ANY KIND, EXPRESS OR IMPLIED, INCLUDING BUT NOT LIMITED TO
WARRANTIES OF MERCHANTIBILITY OR FITNESS FOR ANY PURPOSE.

1.F.5.  Some states do not allow disclaimers of certain implied
warranties or the exclusion or limitation of certain types of damages.
If any disclaimer or limitation set forth in this agreement violates the
law of the state applicable to this agreement, the agreement shall be
interpreted to make the maximum disclaimer or limitation permitted by
the applicable state law.  The invalidity or unenforceability of any
provision of this agreement shall not void the remaining provisions.

1.F.6.  INDEMNITY - You agree to indemnify and hold the Foundation, the
trademark owner, any agent or employee of the Foundation, anyone
providing copies of Project Gutenberg-tm electronic works in accordance
with this agreement, and any volunteers associated with the production,
promotion and distribution of Project Gutenberg-tm electronic works,
harmless from all liability, costs and expenses, including legal fees,
that arise directly or indirectly from any of the following which you do
or cause to occur: (a) distribution of this or any Project Gutenberg-tm
work, (b) alteration, modification, or additions or deletions to any
Project Gutenberg-tm work, and (c) any Defect you cause.


Section  2.  Information about the Mission of Project Gutenberg-tm

Project Gutenberg-tm is synonymous with the free distribution of
electronic works in formats readable by the widest variety of computers
including obsolete, old, middle-aged and new computers.  It exists
because of the efforts of hundreds of volunteers and donations from
people in all walks of life.

Volunteers and financial support to provide volunteers with the
assistance they need, is critical to reaching Project Gutenberg-tm's
goals and ensuring that the Project Gutenberg-tm collection will
remain freely available for generations to come.  In 2001, the Project
Gutenberg Literary Archive Foundation was created to provide a secure
and permanent future for Project Gutenberg-tm and future generations.
To learn more about the Project Gutenberg Literary Archive Foundation
and how your efforts and donations can help, see Sections 3 and 4
and the Foundation web page at http://www.pglaf.org.


Section 3.  Information about the Project Gutenberg Literary Archive
Foundation

The Project Gutenberg Literary Archive Foundation is a non profit
501(c)(3) educational corporation organized under the laws of the
state of Mississippi and granted tax exempt status by the Internal
Revenue Service.  The Foundation's EIN or federal tax identification
number is 64-6221541.  Its 501(c)(3) letter is posted at
http://pglaf.org/fundraising.  Contributions to the Project Gutenberg
Literary Archive Foundation are tax deductible to the full extent
permitted by U.S. federal laws and your state's laws.

The Foundation's principal office is located at 4557 Melan Dr. S.
Fairbanks, AK, 99712., but its volunteers and employees are scattered
throughout numerous locations.  Its business office is located at
809 North 1500 West, Salt Lake City, UT 84116, (801) 596-1887, email
business@pglaf.org.  Email contact links and up to date contact
information can be found at the Foundation's web site and official
page at http://pglaf.org

For additional contact information:
     Dr. Gregory B. Newby
     Chief Executive and Director
     gbnewby@pglaf.org


Section 4.  Information about Donations to the Project Gutenberg
Literary Archive Foundation

Project Gutenberg-tm depends upon and cannot survive without wide
spread public support and donations to carry out its mission of
increasing the number of public domain and licensed works that can be
freely distributed in machine readable form accessible by the widest
array of equipment including outdated equipment.  Many small donations
($1 to $5,000) are particularly important to maintaining tax exempt
status with the IRS.

The Foundation is committed to complying with the laws regulating
charities and charitable donations in all 50 states of the United
States.  Compliance requirements are not uniform and it takes a
considerable effort, much paperwork and many fees to meet and keep up
with these requirements.  We do not solicit donations in locations
where we have not received written confirmation of compliance.  To
SEND DONATIONS or determine the status of compliance for any
particular state visit http://pglaf.org

While we cannot and do not solicit contributions from states where we
have not met the solicitation requirements, we know of no prohibition
against accepting unsolicited donations from donors in such states who
approach us with offers to donate.

International donations are gratefully accepted, but we cannot make
any statements concerning tax treatment of donations received from
outside the United States.  U.S. laws alone swamp our small staff.

Please check the Project Gutenberg Web pages for current donation
methods and addresses.  Donations are accepted in a number of other
ways including checks, online payments and credit card donations.
To donate, please visit: http://pglaf.org/donate


Section 5.  General Information About Project Gutenberg-tm electronic
works.

Professor Michael S. Hart is the originator of the Project Gutenberg-tm
concept of a library of electronic works that could be freely shared
with anyone.  For thirty years, he produced and distributed Project
Gutenberg-tm eBooks with only a loose network of volunteer support.


Project Gutenberg-tm eBooks are often created from several printed
editions, all of which are confirmed as Public Domain in the U.S.
unless a copyright notice is included.  Thus, we do not necessarily
keep eBooks in compliance with any particular paper edition.


Most people start at our Web site which has the main PG search facility:

     http://www.gutenberg.org

This Web site includes information about Project Gutenberg-tm,
including how to make donations to the Project Gutenberg Literary
Archive Foundation, how to help produce our new eBooks, and how to
subscribe to our email newsletter to hear about new eBooks.