NEC TECHNOLOGIES, INC.

CDR-82

Device Type

CD-ROM

Interface

SCSI

Spin Rate

Unidentified

Formats Supported

CD-XA, High Sierra, ISO 9660, Apple HFS, Music CD

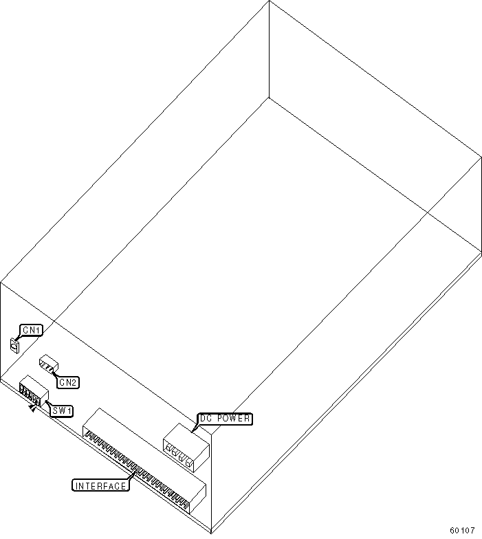
View

Top

CONNECTIONS

Function

Label

Function

Label

Ground terminal

CN1

Audio line out

CN2

USER CONFIGURABLE SETTINGS

Setting

Label

Position

»

Parity check disabled

SW1/4

Off

 

Parity check enabled

SW1/4

On

»

Factory configured - do not alter

SW1/5

Off

»

Factory configured - do not alter

SW1/6

Off

DRIVE SELECT ID

Drive ID

SW1/1

SW1/2

SW1/3

0

Off

Off

Off

1

On

Off

Off

2

Off

On

Off

3

On

On

Off

4

Off

Off

On

5

On

Off

On

6

Off

On

On

7

On

On

On