ACMEPOINT TECHNOLOGY CO., LTD.
CDD-620
Device Type |
CD-ROM |
Interface |
ATAPI |
Spin Rate |
6x |
Formats Supported |
CD-DA, CD-ROM mode 1 & mode 2, CD-XA, CD-I |
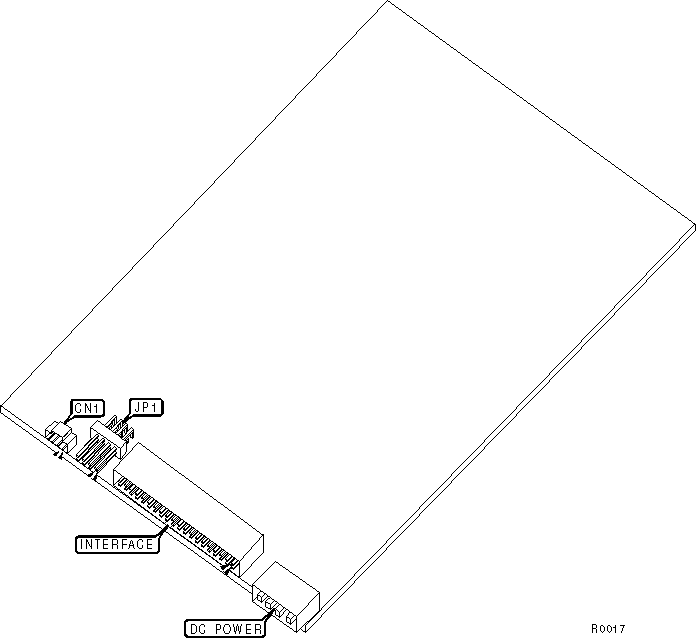
CONNECTIONS | |
Function |
Label |
Audio line out |
CN1 |
USER CONFIGURABLE SETTINGS | |||
Setting |
Label |
Position | |
» |
Interrupt disabled |
JP1/4 |
Open |
|
Polled mode enabled |
JP1/4 |
Closed |
ATAPI MASTER/SLAVE | ||||
Setting |
JP1/1 |
JP1/2 |
JP1/3 | |
|
Single drive only |
Closed |
Open |
Open |
|
Master in two drive system |
Closed |
Open |
Open |
» |
Slave in two drive system |
Open |
Closed |
Open |
|
Master/Slave determined by Cable Select |
Open |
Open |
Closed |
Note: ‘Single drive’ refers to the sole drive connected to an IDE interface (there may be up to two on a given system). Master & Slave refer to two drives connected to an interface. |