HEWLETT-PACKARD COMPANY

COLORADO 8GB INTERNAL, HP C4386B

Device Type

Internal Tape Drive

Interface

IDE(AT)

Format

HP Colorado 8GB, QIC-WIDE

Sustained Transfer Rate

1.17 MBPS

Size

3.5 in. half height

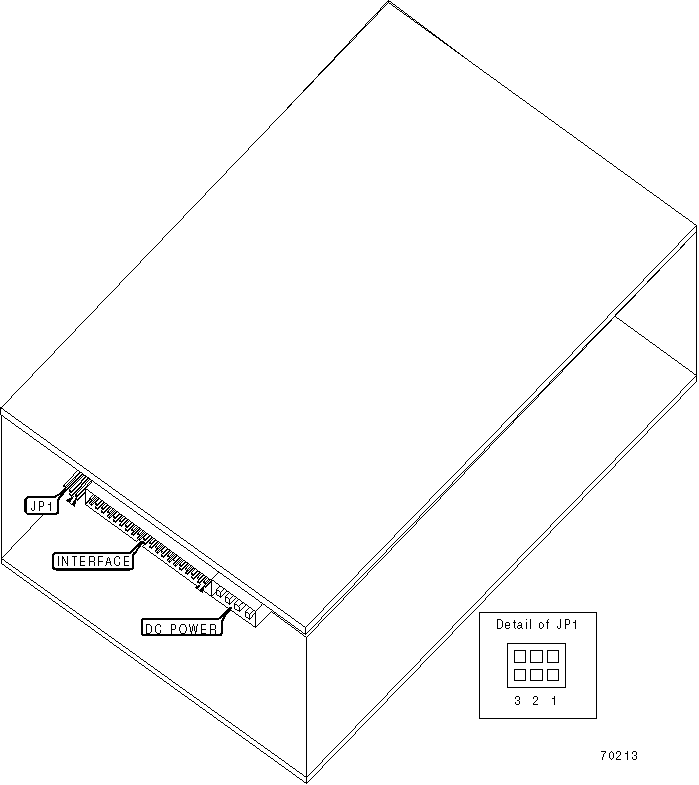
View

Top

IDE MASTER/SLAVE

Setting

JP1/1

JP1/2

JP1/3

Master in two drive system

Closed

Open

Open

Slave in two drive system

Open

Closed

Open

Master/Slave determined by Cable Select

Open

Open

Closed

MANUFACTURERS RECOMMENDED MEDIA

Tape

Capacity Without Compression

Capacity With Compression

HP Colorado 8GB

4GB

8GB