SIEMENS NIXDORF INFORMATIONSSYSTEME AG

SYSTEM BOARD D1000

Processor

Pentium Pro

Processor Speed

200MHz

Chip Set

Unidentified

Video Chip Set

None

Maximum Onboard Memory

512MB (EDO supported)

Maximum Video Memory

None

Cache

256/512KB (located on the Pentium Pro CPU)

BIOS

Unidentified

Dimensions

355mm x 304mm

I/O Options

32-bit PCI slots (4), floppy drive interface, IDE interfaces (2), SCSI interface, parallel port, PS/2 mouse port, serial ports (2), VRM connector, USB connectors (2), RJ-45 port, line out connector, line in connector, game/MIDI port, voice/modem port, CD line in connector, wavetable connector, audio in connector

NPU Options

None

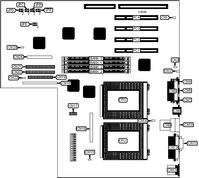
CONNECTIONS

Purpose

Location

Purpose

Location

Wavetable connector

CN1

Chassis fan power

CN14

CD line in connector

CN2

Chassis fan power

CN15

Voice/modem port

CN3

VRM connector

CN16

Audio in connector

CN4

Serial port 2

CN17

Game/MIDI port

CN5

Front panel connector

CN18

Line in connector

CN6

Floppy drive interface

CN19

Line out connector

CN7

IDE interface 1

CN20

RJ-45 port

CN8

IDE interface 2

CN21

USB connector

CN9

SCSI LED

CN22

USB connector

CN10

Chassis fan power

CN23

Serial port 1

CN11

SCSI interface

CN24

Parallel port

CN12

32-bit PCI slots

PC1 - PC4

PS/2 mouse port

CN13

   

USER CONFIGURABLE SETTINGS

Function

Label

Position

»

Flash BIOS write protect disabled

JPA

Pins 3 & 5 closed

 

Flash BIOS write protect enabled

JPA

Pins 1 & 3 closed

»

Flash BIOS normal operation

JPA

Pins 4 & 6 closed

 

Flash BIOS recovery mode

JPA

Pins 2 & 4 closed

»

Factory configured - do not alter

JPB

Unidentified

DIMM CONFIGURATION

Size

Bank 0

Bank 1

Bank 2

Bank 3

16MB

(1) 2M x 64

None

None

None

32MB

(1) 2M x 64

(1) 2M x 64

None

None

32MB

(1) 4M x 64

None

None

None

48MB

(1) 2M x 64

(1) 2M x 64

(1) 2M x 64

None

64MB

(1) 2M x 64

(1) 2M x 64

(1) 2M x 64

(1) 2M x 64

64MB

(1) 4M x 64

(1) 4M x 64

None

None

64MB

(1) 8M x 64

None

None

None

96MB

(1) 4M x 64

(1) 4M x 64

(1) 4M x 64

None

128MB

(1) 4M x 64

(1) 4M x 64

(1) 4M x 64

(1) 4M x 64

128MB

(1) 8M x 64

(1) 8M x 64

None

None

128MB

(1) 16M x 64

None

None

None

192MB

(1) 8M x 64

(1) 8M x 64

(1) 8M x 64

None

256MB

(1) 8M x 64

(1) 8M x 64

(1) 8M x 64

(1) 8M x 64

256MB

(1) 16M x 64

(1) 16M x 64

None

None

384MB

(1) 16M x 64

(1) 16M x 64

(1) 16M x 64

None

512MB

(1) 16M x 64

(1) 16M x 64

(1) 16M x 64

(1) 16M x 64

Note: Board accepts EDO memory.

DIMM VOLTAGE CONFIGURATION

Voltage

JPE

 

50ns

Pins 1 & 3, 2 & 4 closed

»

60ns

Pins 3 & 5, 4 & 6 closed

CACHE CONFIGURATION

Note: 256KB/512KB cache is located on the Pentium Pro CPU.

CPU SPEED SELECTION

Speed

JPC

JPD

200MHz

Pins 3 & 5, 4 & 6 closed

Pins 3 & 5, 4 & 6 closed